도면창고
ABOUT US 포트폴리오 상담문의 협력업체 문의
도면창고
도면창고 작품과 이야기 학원창업성공스토리 학원창업정보 학원설립정보 세미나실
도면창고
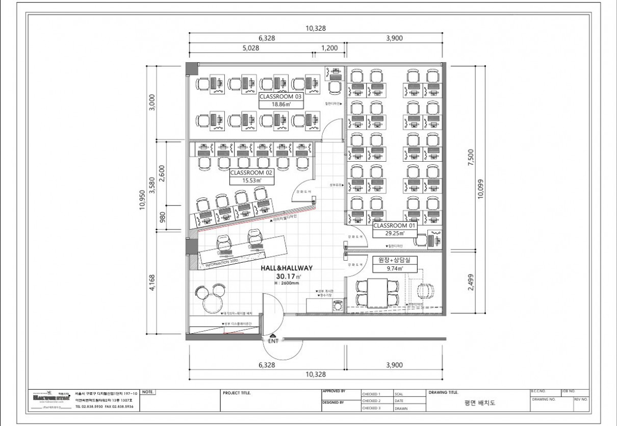
컴퓨터/초,중/36평

본문

전 문 분 야 50평이하
비용
평형
스타일
주소

학원종류:컴퓨터

대상:초,중

면적:36평

무료 견적 신청하기
icon

전화
문의

icon

온라인
문의

icon

블로그

icon

학원창업
닷컴

학원창업
닷컴